01 tháng 11, 2025

Biệt thự liền kề Eden Rose

Mọi công trình cải tạo đều bắt đầu từ một câu hỏi: giữ lại điều gì và thay đổi thế nào để tạo nên một không gian mới thực sự có ý nghĩa với người sống ở đó.

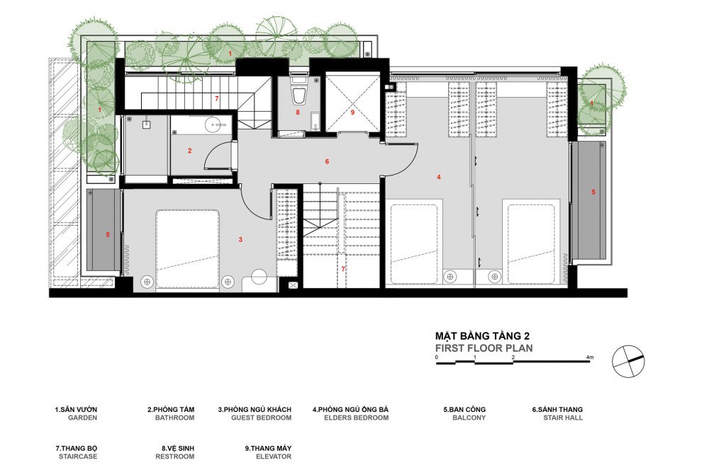
Eden Rose Villa, căn biệt thự song lập trên mảnh đất 158m² và tổng diện tích sàn 352m² tại Thanh Trì, Hà Nội cũng gặp nhược điểm phổ biến là cầu thang giữa lớn, gây chia cắt tầm nhìn và ngăn cản ánh sáng tự nhiên vào sâu bên trong.

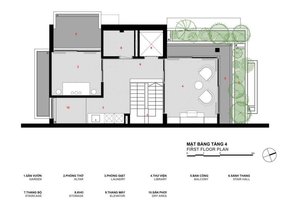
Với bài toán thiết kế cho gia đình ba thế hệ, mục tiêu là kiến tạo một không gian mở, hòa nhịp với thiên nhiên nhưng vẫn đảm bảo sự riêng tư cần thiết. Giải pháp then chốt là tái tổ chức giao thông theo trục dọc: thang bộ tầng một được chuyển về cuối nhà, giúp giải phóng đáng kể diện tích trung tâm, tạo nên chuỗi không gian khách — bếp — ăn liên thông và khoáng đạt. Từ tầng hai, thang được trả về vị trí giữa để đảm bảo sự riêng biệt và yên tĩnh cho các phòng ngủ.

Về kiến trúc, mặt đứng công trình là sự kết hợp giữa các mảng kính lớn và bồn cây — đóng vai trò như những “lá phổi” tự nhiên. Hệ thống cây xanh đan xen này không chỉ làm mềm hình khối kiến trúc mà còn là vùng đệm tiết chế nhiệt năng, giúp luồng không khí và ánh sáng tự nhiên luôn được luân chuyển một cách dễ chịu quanh năm.

Ngôn ngữ thiết kế của Eden Rose Villa đi theo tinh thần "Tối giản — Xanh — Tiết kiệm năng lượng", tập trung vào hình khối và tỉ lệ. Sự tương phản giữa tường trắng và đá tự nhiên xẻ rãnh tạo nên nhịp điệu thị giác mạnh mẽ nhưng không phô trương. Những chi tiết kiến trúc được tiết chế đến mức vừa đủ — đủ để nhận diện cá tính công trình, nhưng không lấn át cảm xúc của gia chủ.

Không gian nội thất cũng nhất quán với triết lý đó: khúc triết, thông thoáng và mạch lạc. Các mảng màu đen được sử dụng có chủ đích, vừa là điểm tựa thị giác, vừa phản ánh cá tính mạnh mẽ của chủ nhà. Xen giữa những tông màu đối lập, sắc vân gỗ ấm mang đến sự cân bằng, tạo nên cảm giác tĩnh tại, ấm cúng mà không nặng nề. Mỗi chi tiết đều phục vụ công năng, nhưng đồng thời vẫn giữ được nhịp điệu và hơi thở của kiến trúc đương đại.

Từ khung nhà cũ, chúng tôi đã hồi sinh Eden Rose Villa thành một cấu trúc mới — nơi ánh sáng và cây xanh không chỉ cải thiện vi khí hậu mà còn kiến tạo cảm xúc sống tích cực giữa nhịp sống đô thị.

Ecopark, Hung Yen

Biệt thự liền kề Eden Rose

Hiển thị bản đồ